ALTONA 2/20 Curlew Avenue
Premium Single Level Proportions
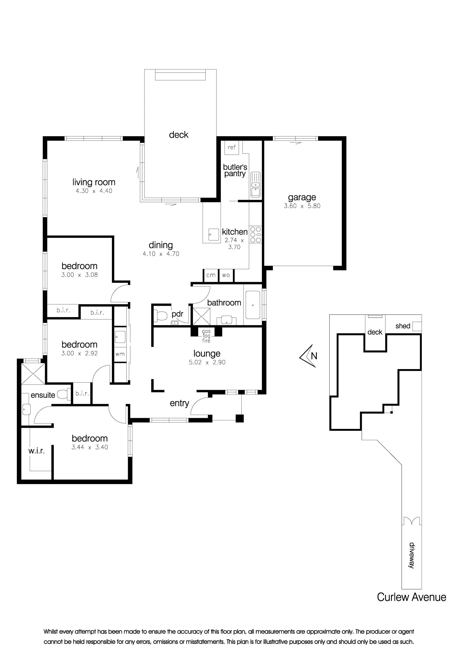
Set to the rear so that seclusion complements its sophistication, this exceptional single level residence is one of only two. The appeal of dual living areas distinguishes a three bedroom, two bathroom design featuring desirable outdoor surroundings, a secure garage and multiple additional car spaces in a coveted location close to Westona station, Harrington Square shops, Kooringal Golf Club and the water. Freedom from body corporate cost further enhances a free-standing property of impressive status and style.
• Inviting, free-standing and set to the rear of an ideal address
• Flexible, substantial lounge room featuring a gas log fire place
• Separate living area accompanied by ample dining spaces
• Generous open-plan kitchen zone includes stone bench-tops
• Stainless steel Smeg appliances, ample storage, butler's pantry
• Walk-in robe and ensuite complement a superb main bedroom
• Two additional double bedrooms both served by built-in robes
• Stylish central family size bathroom and separate powder room
• Efficient ducted central heating and refrigerated air-conditioning
• Alfresco deck with outdoor heater, additional entertaining area
• Courtyard privacy, secure garage and convenient extra parking
Uniquely attractive, offering dual living domains in a single level format, complemented by privacy and ample parking, a property of significant appeal in a prized position.
Disclaimer: All information provided has been obtained from sources we believe to be accurate, however, we cannot guarantee the information is accurate and we accept no liability for any errors or omissions (including but not limited to a property's land size, floor plans and size, building age and condition). Interested parties should make their own enquiries and obtain their own financial and legal advice.
• Inviting, free-standing and set to the rear of an ideal address
• Flexible, substantial lounge room featuring a gas log fire place
• Separate living area accompanied by ample dining spaces
• Generous open-plan kitchen zone includes stone bench-tops
• Stainless steel Smeg appliances, ample storage, butler's pantry
• Walk-in robe and ensuite complement a superb main bedroom
• Two additional double bedrooms both served by built-in robes
• Stylish central family size bathroom and separate powder room
• Efficient ducted central heating and refrigerated air-conditioning
• Alfresco deck with outdoor heater, additional entertaining area
• Courtyard privacy, secure garage and convenient extra parking
Uniquely attractive, offering dual living domains in a single level format, complemented by privacy and ample parking, a property of significant appeal in a prized position.
Disclaimer: All information provided has been obtained from sources we believe to be accurate, however, we cannot guarantee the information is accurate and we accept no liability for any errors or omissions (including but not limited to a property's land size, floor plans and size, building age and condition). Interested parties should make their own enquiries and obtain their own financial and legal advice.
Map
Recent sales
| 10 Emu Avenue Altona | 3 beds | 1 baths | 4 cars | April 2026 |
| 2a Kookaburra Street Altona | 2 beds | 1 baths | 1 cars | April 2026 |
| 25 Finch Street Altona | 3 beds | 2 baths | 2 cars | March 2026 |
| 134 Grieve Parade Altona | 3 beds | 2 baths | 5 cars | January 2026 |
| 2a Carruthers Court Altona | 4 beds | 3 baths | 1 cars | December 2025 |
